Lakás eladó

Budapest XIII. ker., Visegrádi utca utca - Újlipótváros
67.500.000 Ft
€ 173.450
1 szoba 1 szoba
39 nm 39 nm
1 fürdő 1 fürdő

Lakás eladó

Budapest XIII. ker., Visegrádi utca utca - Újlipótváros

Leírás

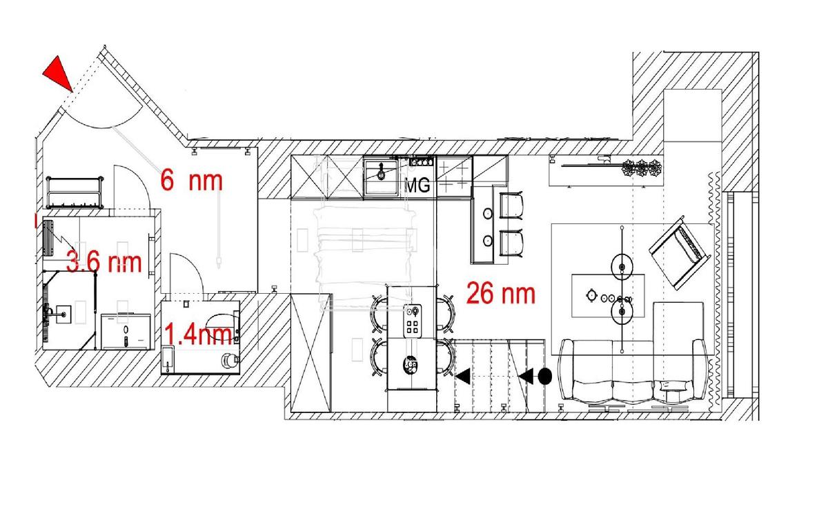
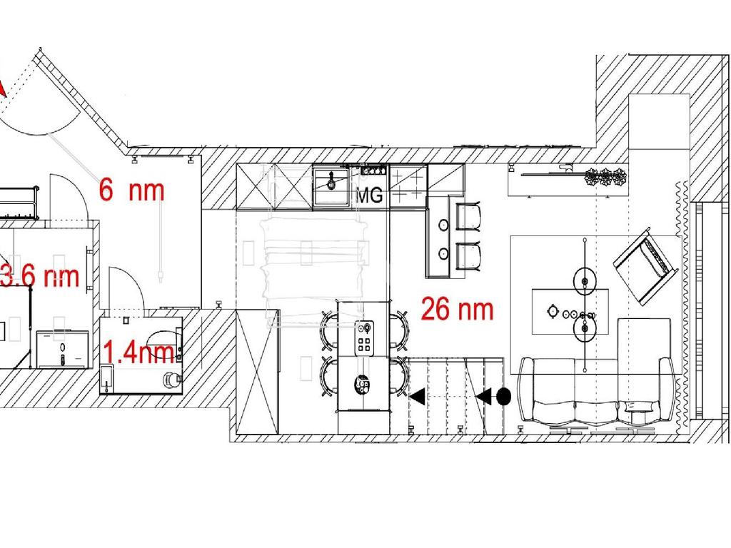
Eladó a Visegrádi utcában egy teljeskörűen felújított, 39 nm-es + 6 nm galériás, napfényes kis lakás. Az ingatlan az első emeleten helyezkedik el, amely a magasföldszintnek köszönhetően valójában második emeleti érzetet nyújt. A dél-nyugati fekvésnek előnye, hogy a lakás egész nap világos, barátságos hangulatú. A modern, beépített és gépesített konyha tökéletesen illeszkedik a térbe, míg a galéria kényelmes háló- vagy akár dolgozórészként is kiválóan használható, így a lakás minden négyzetmétere jól kihasznált. ( A képek készítésekor a villany még nem volt teljesen kész). A komfortérzetről elektromos padlófűtés és hűtő-fűtő klíma gondoskodik. Ez a kompakt, mégis jól élhető otthon ideális választás lehet első lakásnak, de kiváló befektetési lehetőség is, hiszen könnyen kiadható. Az ingatlan ügyvédi megosztással rendelkezik. Elhelyezkedése kiváló: néhány perc sétára található a Westend City Center és a Szent István körút. A közelben elérhető az Budapest Metro 3, valamint a Budapest 4–6 és számos buszjárat. A környék rendezett, közkedvelt és folyamatosan fejlődő, mégis nyugodt, élhető környezetet biztosít a mindennapokhoz. Kérdés vagy megtekintési szándék esetén keressen bizalommal! Ügyfeleink részére díjmentes, bankfüggetlen hitelügyintézést biztosítunk.

Összes mutatása

Tulajdonságok

Ref.:
60370
Állapot:
Felújított
Emelet:
1
Lift:
Van
Építőanyag:
Tégla
Építés éve:
1909
Összes mutatása

Energetikai tanúsítvány

Ehhez az ingatlanhoz nem tartozik energetikai tanúsítvány
Építés éve:
1909

Vegye fel velünk a kapcsolatot

* Ez a mező kötelező
Franchisee
Casa Profitto Nuovo Kft.
1132 Budapest, Visegrádi utca, 18./C
1132 Budapest, Visegrádi utca, 18./C XIII. kerület Belső Újlipótváros
Hétfő-Péntek: 09:00-19:00, Szombat: 09:00-13:00

Munkatársaink


  • Péter Bálint
    Irodatulajdonos

  • Zsuzsanna Bálint-Fiedler
    Asszisztens

  • Dániel Vészi
    Képviselő
Franchisee
Casa Profitto Nuovo Kft.
1132 Budapest, Visegrádi utca, 18./C
Tecnocasa Group Logo

Minden ügynökségnek saját tulajdonosa van és önállóan működik.

árfolyam 27/03/2026
EUR 389.16 HUF

cégünk

Elérhetőségeink

2026 Gruppo T.F.M. Szolgáltató Zrt. - P. IVA 27421275-2-42 - 1068 Budapest, Király utca 102.. Minden ügynökségnek saját tulajdonosa van és önállóan működik.

Adatvédelmi irányelvek | Cookies tájékoztató